![]() |
|
||||||||||||||||||||||||
![]() |
|||||||||||||||||||||||||
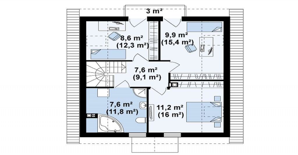
ОписаниеЭтот 2-этажный дом с мансардной крышей вместителен, светел, уютен: он являет собой хороший пример малоэтажного особняка, уместного и на тихой городской улице, и за городом. Почти квадратный дом с 5-ю комнатами, встроенными шкафами, подсобными помещениями, камином, балконом и террасой. Приветливый снаружи, с интересными решениями отделки фасада и разными по форме и размеру окнами, он удобен и функционален внутри. Крылечко с коньком приведет нас в прихожую и тамбур; далее – направо небольшая жилая комната, налево – санузел и прачечная, а прямо перед нами светлая гостиная с выходом на террасу и камином; отдельная кухня и лестница на мансарду. Наверху – покой и уют 3-х спален, в каждой – встроенный шкаф, из меньших комнат – выход на балкон. На этаже большая ванная комната с санузлом. |
|||||||||||||||||||||||||












